
Yana 01
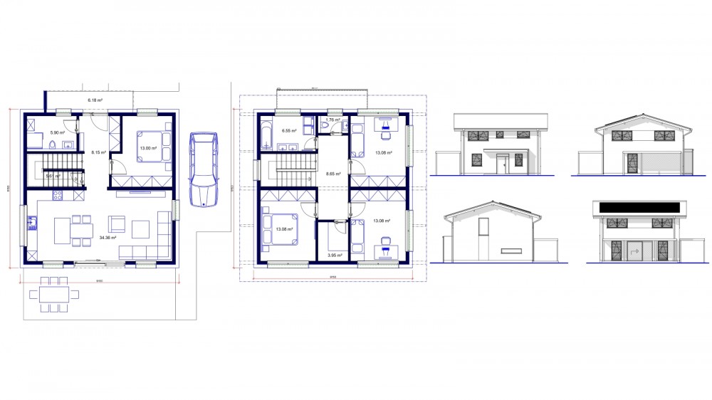
Obytné miestnosti: 4Celková obytná plocha: 130 m2
Dovoľte mi predstaviť Vám v prílohe aj náš nový dom YANA, vyhotovený vo viacerých modifikáciách. Ide o 4-spalňový poschodový RD, vyhotovený novou technológou takmer kompletného prefabrikovania v hale. Dom bude dodaný na stavbu uz s elektroinštaláciou, oknami, zateplením a sadrokartónmi. Skráti sa tak doba výstavby na stavbe na 1-2 mesiace a súčasne dom prefabrikáciou v hale je i cenovo maximálne prístupný.
Cena základného modelu YANA 01 s podlahovou plochou 130 m2 a 4 spálňami v stave na kľúč vychádza od 135-tis €. + základová doska na rovine 10.000 €. V cene je uz rekuperácia a tepelné čerpadlo s vykurovaním a chladením.
Tento dom pripravujeme i v zmenšenej verzii LEO, kde výmera bude cca 100 m2, bude mať 3 spálne a jeho cena bude veľmi priaznivá.