














































































































































































































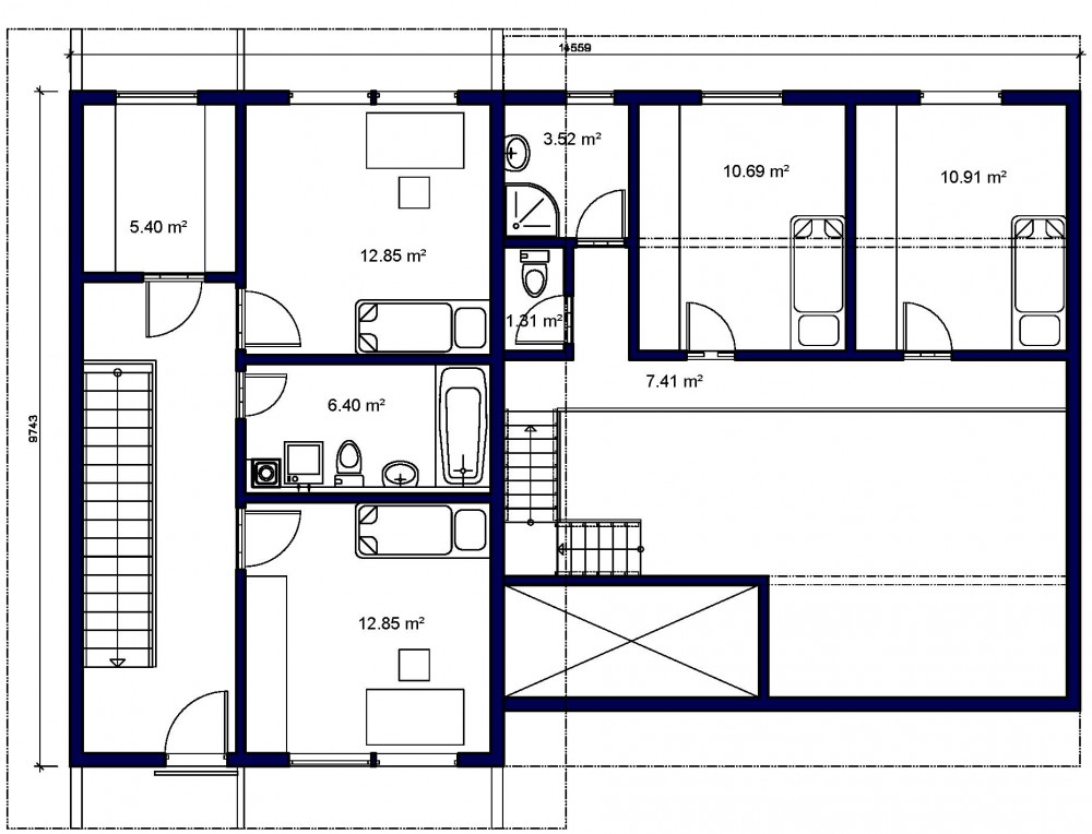
Poschodový dvojdom P7. a P15a.
Obytné miestnosti: 6Zastavaná plocha: 67,51+60,89 m2
Celková úžitková plocha: 94,002+101,583 m2
Celková obytná plocha: 94,002+98,703 m2
Obostavaný priestor: 282+256,62 m3
Výška hrebeňa strechy od 0,0: 7,15 m
Sklon strechy: 20o
Toto je projekt dvojpodlažného dvojdomu , ktorý je zastrešený pultovými strechami.
Dispozične sú domy delené na dennú prevádzku , ktorá sa nachádza na prízemí a izby sú riešené na poschodí.Stopy horných miestností sú zošikmené.Dom P15 je možné realizovať aj samostatne,
Domy sú určené pre 4 člennú rodinu.Minimálna šírka pozemku je 20,6m (dvojdom)