














































































































































































































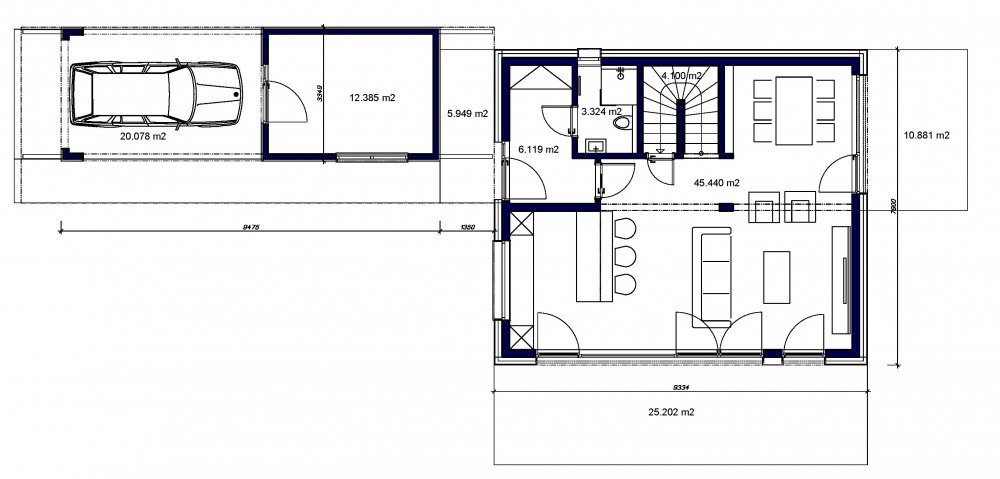
Poschodový dom P33.
Obytné miestnosti: 3Zastavaná plocha: 67,005 m2
Celková úžitková plocha: 112,906 m2
Celková obytná plocha: 112,906 m2
Obostavaný priestor: 316,083 m3
Výška hrebeňa strechy od 0,0: 7,1 m
Sklon strechy: 10o
Originálne riešený poschodový dom s oddelenou dennou časťou na prízemí a nočnou časťou na poschodí určený. pre 4- 5 člennú rodinu. Súčasťou domu je priestranná terasa spojená s obývacou izbou a jedálňou. Minimálna šírka pozemku je 13,9 m.