
























































































































































































Bungalov XL40.
Obytné miestnosti: 6Zastavaná plocha: 145,13 m2
Celková úžitková plocha: 62,5+117,45=179,95 m2
Celková obytná plocha: 62,5+117,45=179,95 m2
Obostavaný priestor: 138,48+305,40=443,88 m3
Výška hrebeňa strechy od 0,0: 3,6 celkovo 6,7 m
Sklon strechy: 0o
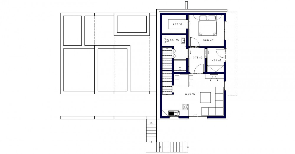
Jedná sa o modernú stavbu, ktorá je určená pre osadenie do svahovitého pozemku. Projekt je koncipovaný tak, že sa dá rozdeliť na 2 samostatné bytové jednotky a tým sa dá docieliť koncepcia dvojgeneračného domu. Prepojením vnútorným schodiskom sa dá objekt znovu zjednotiť. Jedná sa teda o univerzálne riešenie - prispôsobenie sa domu danej potrebe. Zastrešený je modernou plochou vegetačnou strechou. Dispozične je navrhnutý s dôrazom na maximálnu efektivitu využitia podlahovej plochy. Je určený pre 2 rodiny 2 - a 4-člennú alebo jednu 6-člennú rodinu. Minimálna šírka pozemku je 15,5 m.
Architektonický návrh Ing.arch.Ivan Čitáry PhD.